Skip to main content Skip to footer

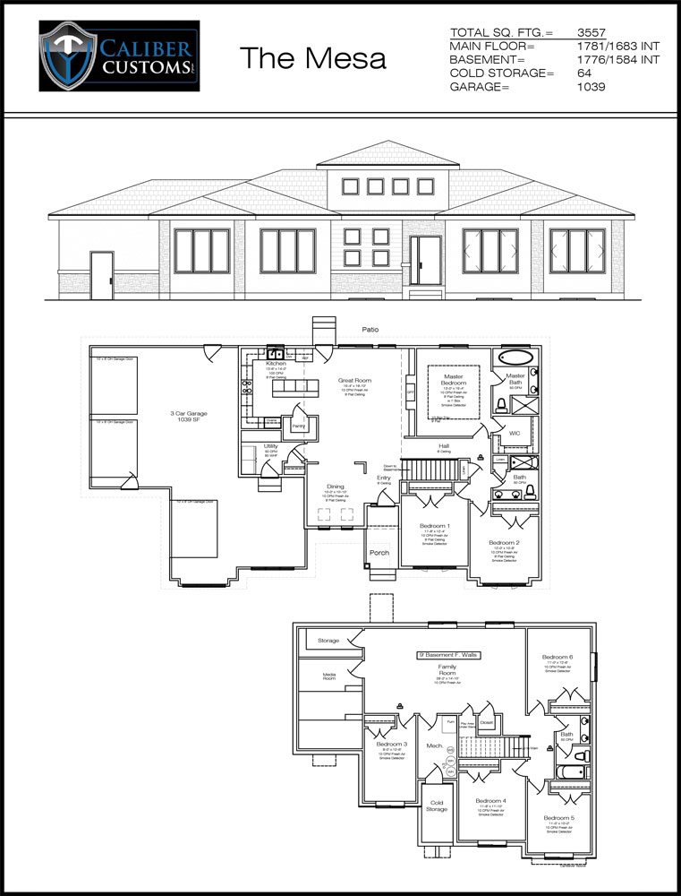
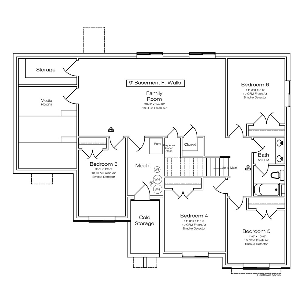
TheThe Mesa

$495000

Starting Price

2604

Total Sq Ft

5

Beds

3

Baths

2

Bays

2500

Finished Sq Ft