Skip to main content Skip to footer

TheTarghee

$495000

Starting Price

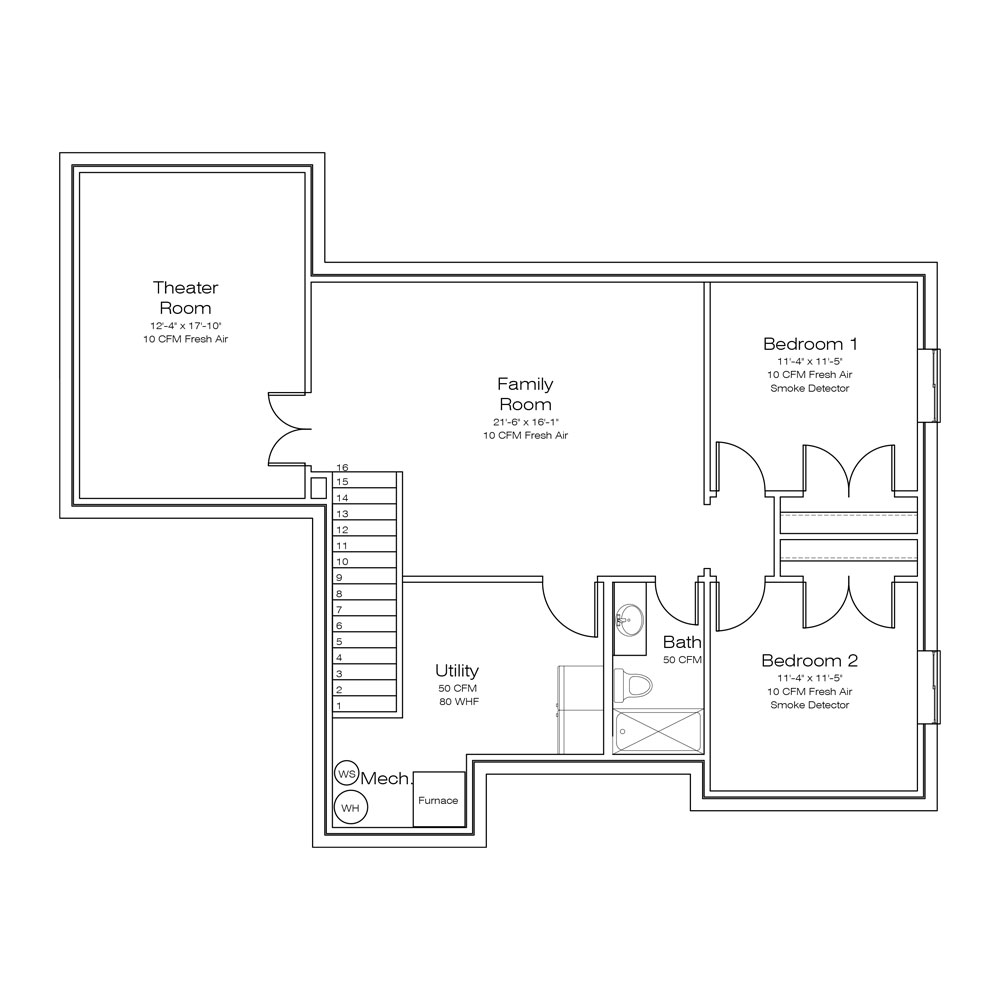
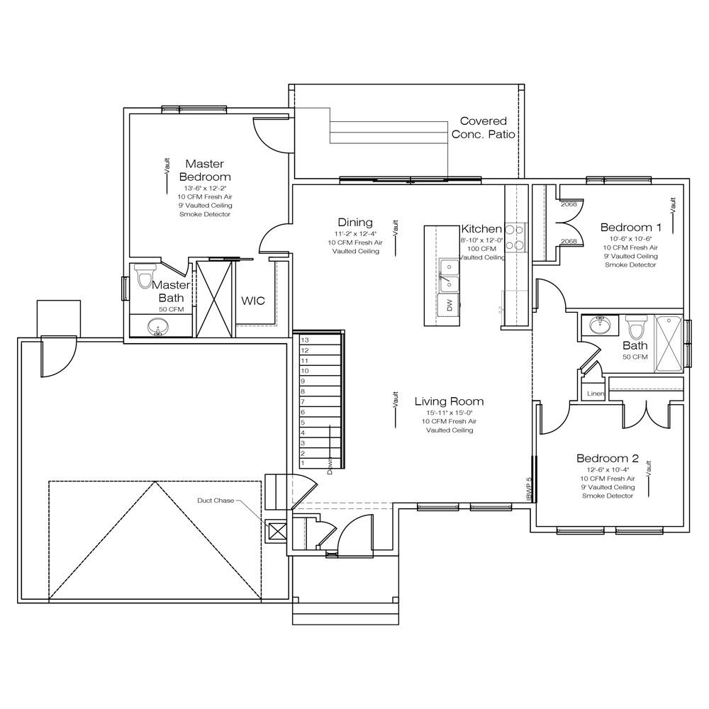
2604

Total Sq Ft

5

Beds

3

Baths

2

Bays

2500

Finished Sq Ft