Skip to main content Skip to footer

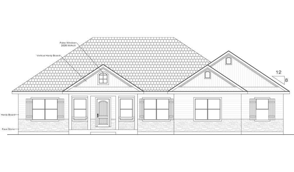
TheSawtooth

$495000

Starting Price

3833

Total Sq Ft

4

Beds

3

Baths

2

Bays

2500

Finished Sq Ft