Skip to main content Skip to footer

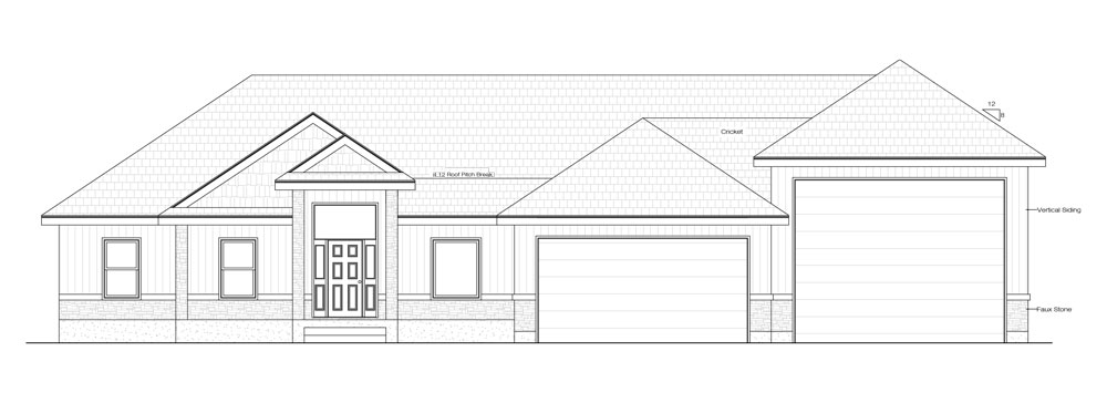
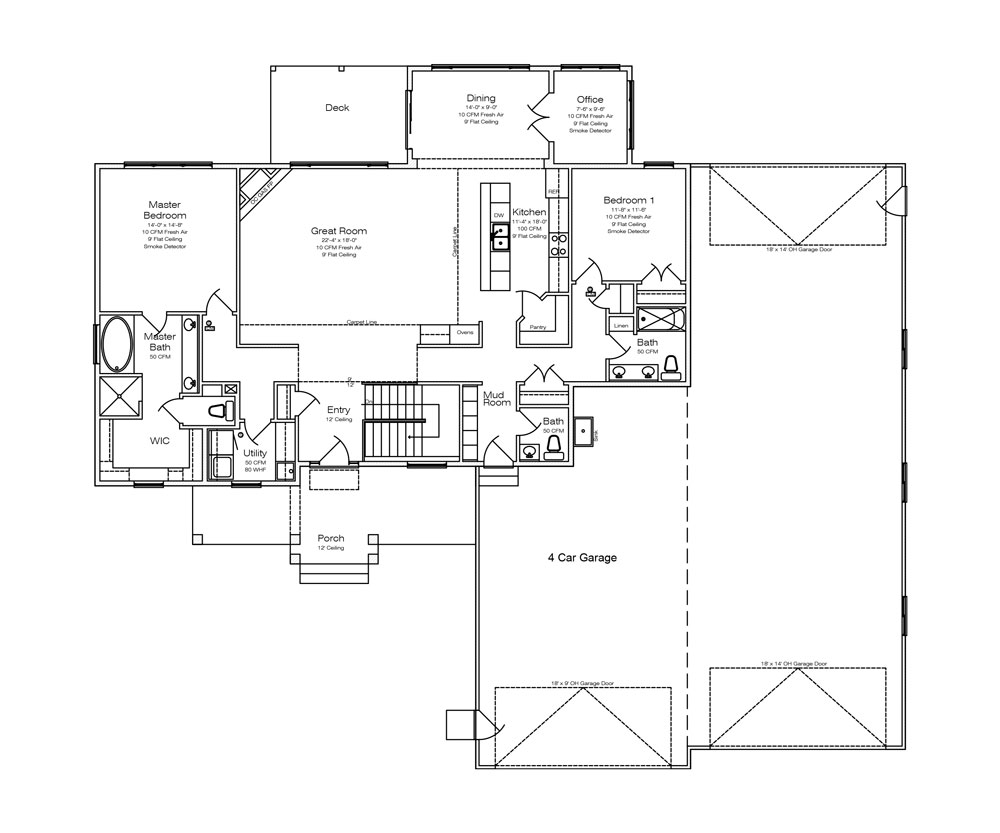
ThePalisades

$495000

Starting Price

4130

Total Sq Ft

4

Beds

2

Baths

2

Bays

2500

Finished Sq Ft