Skip to main content Skip to footer

TheGladstone

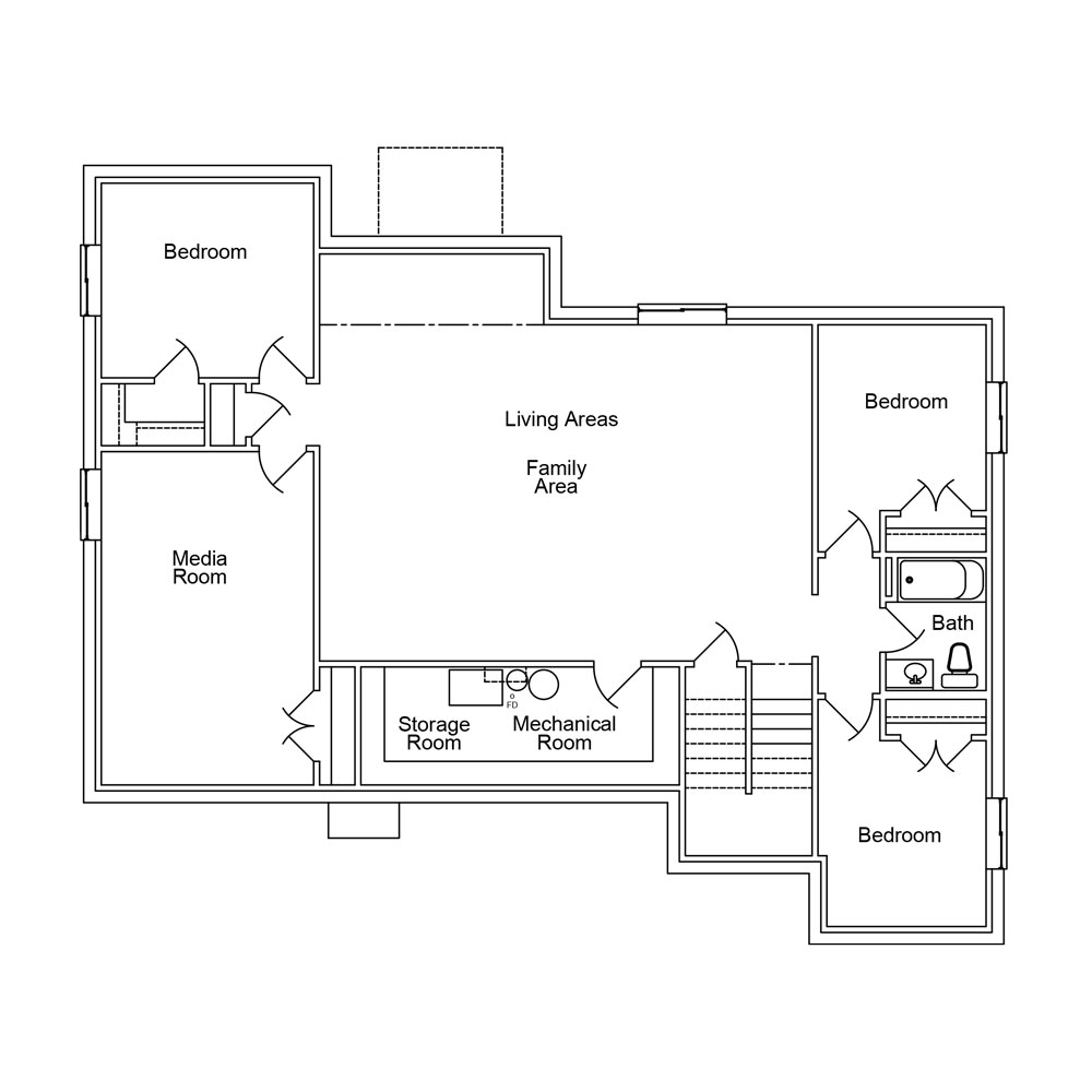
$495000

Starting Price

3197

Total Sq Ft

5

Beds

3

Baths

2

Bays

2500

Finished Sq Ft